Skip to main content
Resources
Partner With Us
Careers
Contact Us
Real Estate Investing
Real Estate Investing
Southern Impression Homes delivers turnkey, new-construction rentals across the Florida (and the US)
Learn More >
Individual Investors
Private Equity / Institutional Investors
Corporate Investors
Investment Properties
Investment Properties
Turnkey Real Estate Investments
Learn More >
Properties
Floor Plans
Whole Communities
Investing Education
Investing Education
Whether you’re entering the market or scaling your portfolio, find the education and insights to invest smarter.
Learn More >
Masterclass
Webinars
Podcasts + Educational Videos
Passive Income Playbook
Events
Our Services
Our Services
SIH offers a full range of services to support investors of all types, from development and construction to turnkey investing and long-term management.
Learn More >
Fee Build
Turnkey Investing
Land & Community Development
Residential Design-Build
Community Amenity Design Build
Build On Your Lot
Capital Operations
About
About
Our Team
Our Vision
Property Management
Resources
Partner With Us
Careers
Contact Us
Real Estate Investing
Individual Investors
Private Equity / Institutional Investors
Corporate Investors
Investment Properties
Properties
Floor Plans
Whole Communities
Investing Education
Masterclass
Webinars
Podcasts + Educational Videos
Passive Income Playbook
Events
Our Services
Fee Build
Turnkey Investing
Land & Community Development
Residential Design-Build
Community Amenity Design Build
Build On Your Lot
Capital Operations
About
Our Team
Our Vision
Property Management
Resources
Social Media
Title Company
Preferred Lenders
News
Property Management
Partner With Us
Careers
Contact Us
Vendor Form
Warranty Form
Home
>
Investment Properties
>
Floor Plans
>
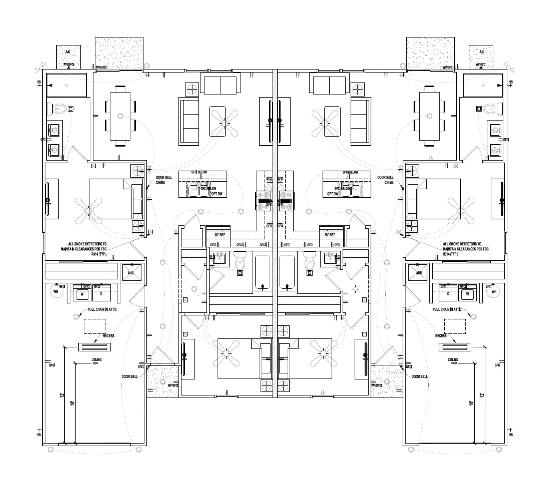
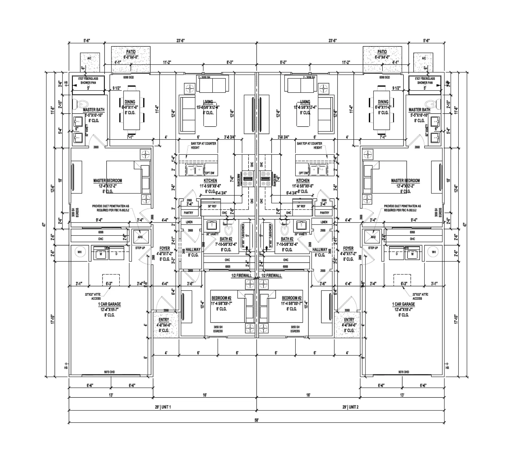
1954
1
/3
- Plan B
2
Beds
2
Baths
1954
Sq.Ft.
1
Garage
Property Type:
Duplex
Width:
58ft
Depth:
47ft
Download Floor Plan
Floorplan
1954
+
-
Plan B
Plan C
Plan D
Download Floor Plan
Properties with this floor plan
13 Unique Ct.
Palm Coast, Florida 32164
$489,900
4
Beds
4
Baths
1,954
Sq.Ft.
Property Type:
Duplex
Floor Plan:
1954
54 Underwood Trail
Palm Coast, Florida 32164
$489,900
4
Beds
4
Baths
1,954
Sq.Ft.
Property Type:
Duplex
Floor Plan:
1954
38 Slumber Meadow Trail
Palm Coast, Florida 32164
$489,900
4
Beds
4
Baths
1,954
Sq.Ft.
Property Type:
Duplex
Floor Plan:
1954